residenciais_19_leia_mais

Projetos Residenciais

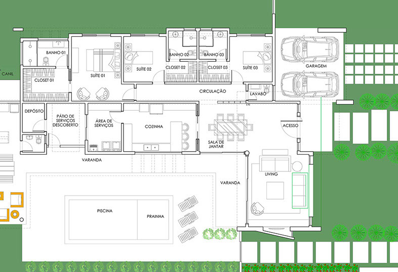
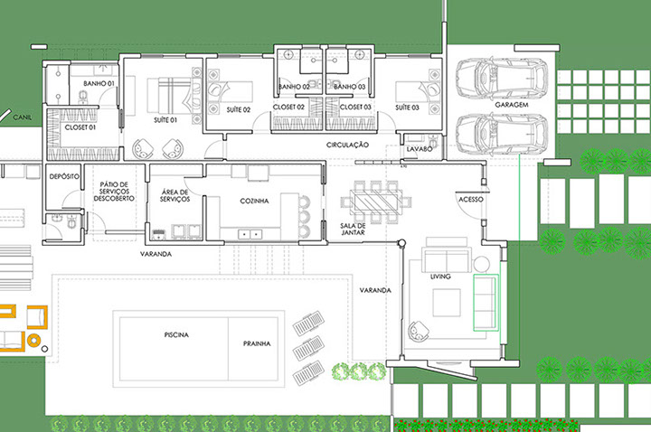
Casa em Sorocaba

LOCALIZAÇÃO

Sorocaba SP

ÁREA DO TERRENO

1.000m²

ÁREA DA CONSTRUÇÃO

274m²

TÉCNICA CONSTRUTIVA

Alvenaria estrutural

DATA DO PROJETO

2014

DATA DA CONCLUSÃO

Em construção

PROPOSTA

É difícil produzir tantas versões das perspectivas, é um trabalho demorado e que fica inviável de ser refeito a cada pequena ou grande alteração que o projeto sofre enquanto estudo, mas nesse caso optamos por gerá-las, não em cada um dos ajustes, mas nos mais significantes. É interessante para ver a evolução de um projeto ao longo do seu desenvolvimento, o que ele perde o que ele ganha no que ele "ousa", no que ele se torna conservador, entre outros fatores. Gostaria de mostrar aqui que um projeto arquitetônico é muito mais que um desenho em uma folha de papel, mostrando as transformações desde a primeira ideia, até se adequar ao que o cliente quer e/ou precisa e ainda respeitar uma linha de raciocínio e criação do profissional.

Só mais um detalhe, esse projeto foi elogiado pelo engenheiro calculista, pelo fato de arquitetura se utilizar da estrutura como estética e a estrutura ser a própria arquitetura. VOLTAR